TORINO. Casa detta “Fetta di polenta”
Realizzata nel 1840 dall’ingegner Antonelli, la Casa Scaccabarozzi è nota col nome di “Fetta di Polenta” per la forma e per il colore dell’esterno.
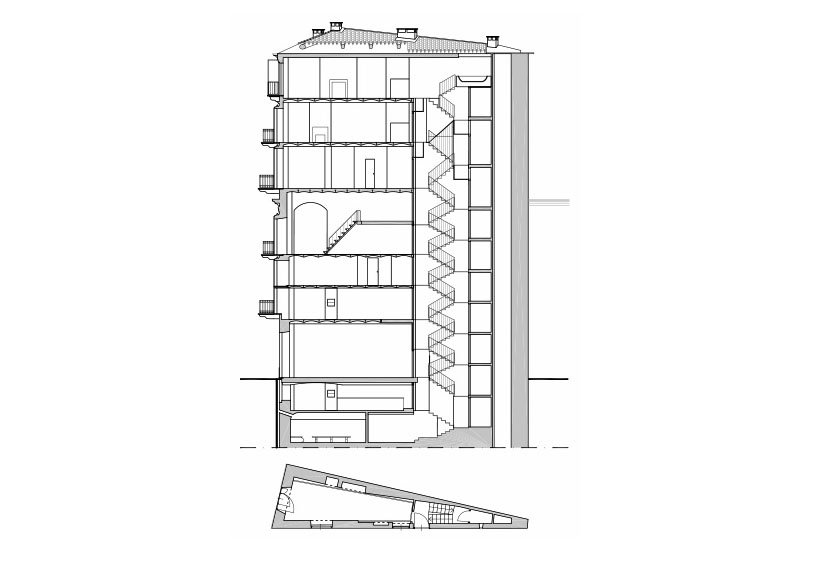
L’edificio, sito in via Giulia di Barolo 9, angolo corso San Maurizio, si sviluppa in altezza, 24 m, adattandosi al terreno di forma trapezoidale-triangolare molto stretta (16 x 5 x 0,54 m).
Originariamente aveva due piani interrati (che fungono anche da fondazioni) e tre piani fuori terra. Nel 1881 fu soprelevato con altri piani superiori e con l’aggiunta di due piani mezzanino, che lo portarono ad avere complessivamente nove piani, sette fuori terra e due interrati collegati da una piccola scala a forbice in pietra. Nel lato di 54 cm, per ottimizzare lo spazio, Alessandro Antonelli vi pose la canna fumaria.
La casa è caratterizzata da ambienti adattati, anche con l’inserimento nella parte più stretta di stanze triangolari, per i quali furono realizzati speciali arredi.
Le facciate presentano finestre in aggetto di forma allungata e con leggere lesene; il cornicione dell’ultimo livello è inglobato nel balcone.
Il palazzo prende il nome da Francesca Scaccabarozzi, moglie di Antonelli. I due coniugi la abitarono per alcuni anni per sfatare i timori che potesse crollare.
Dipinta all’esterno in giallo, la costruzione fu soprannominata “fetta di polenta” ed è stata abitazione di diversi proprietari; attualmente è adibita a casa-galleria d’arte.
Spostati sulla mappa per visualizzare le altre schede.


